Tehnička specifikacija
Sef po narudžbi, model AG15RE- WERTHEIM

- Vanjske dimenzije ukupno: 870x450x442mm (vxšxd)
- Dimenzije sefa: 565x450x442mm (vxšxd) + 30cm postolje
- Unutarnje dimenzije: 515x400x310mm (vxšxd)
- Boja: Crna
- Težina: 140 kg
- Volumen: 64l
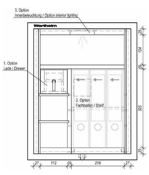
- Unutrašnost: Drvo prema skicama + LED svijetlo | Vrata: prozirno staklo prema mehanizmima
- Certifikati:
Vatrootpornost prema DIN4102Stupanj sigurnosti I - EN1143-1,VdS,ECB:S,VSO,a2p
- Zaključavanje: Elektronska brava Wittkopp Primor 2600 (VdS class II)

Zaključavanje u 5 točaka
Otvaranje vrata: Desno - 180º
Sa pripremom za fiksiranje i spajanje na alarmni sustav

*Napomena za dostavu: Dostava za ovaj proizvod je besplatna (do prve prepreke) za područje cijele Hrvatske, osim otoka i poštanskog broja koji počinje s 20 (Dubrovnik i okolica). Cijena dostave za ove lokacije na upit, mogućnost montaže.
-
